Mã sản phẩm: TN 05
+ Ứng dụng trần nhôm C300-Shaped
Dùng thi công trần cho Tòa nhà Văn phòng, Trường học, Bệnh viện, trung tâm thương mại, trung tâm thể thao, nhà ga sân bay, ngân hàng, khách sạn, trung tâm viễn thông, trung tâm truyền hình ....
+ Đặc điểm trần nhôm C300-Shaped
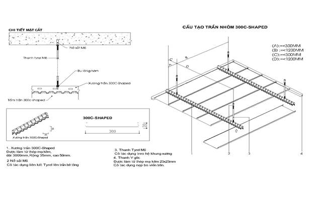
Hệ trần nhôm C300-Shaped gồm các tấm có bản rộng 300mm, được liên kết với thanh xương cài C300, tấm trần phủ sơn gia nhiệt PE, sơn tĩnh điện với nhiều mầu sắc đa dạng, độ dài tấm được sản xuất theo yêu cầu. Dễ dàng thi công lắp đặt, không yêu cầu dụng cụ máy móc phức tạp, tương thích với các loại đèn chiếu sáng, loa âm thanh, thiết bị PCCC, Camera… Sản phẩm có độ ổn định cao, hoàn toàn chống cháy và chống nước, không bị oxy hóa, hoàn toàn loại bỏ yếu tố xâm thực của môi trường.
+ Mô tả trần nhôm C300-Shaped:
Sử dụng hệ thống treo dạng thanh tuyến tính, trần C300-Shaped cho cảm quan về mảng trần hình sọc có độ dài bất kỳ. trần C300-Shaped sử dụng hệ khung cài để giữ hai gờ đối diện của tấm vào khung chính, đảm bảo các tấm trần thẳng hàng và cân bằng. Với các ứng dụng đa dạng về kiến trúc, mỹ thuật dùng cho nội và ngoại thất.
.jpg)
+ Màu sắc và sơn phủ:
Các màu có sẵn theo bảng màu bên dưới, các yêu cầu khác có thể thực hiện theo yêu cầu.
Màu sắc chỉ mang tính chất minh họa.
.jpg)